一、主要机械结构和特征:
滚筒:φ50*1.5mm双链滚筒,两端轴承为免维护深沟球轴承,筒体材料为碳钢镀锌,外包硬质塑料锥套。
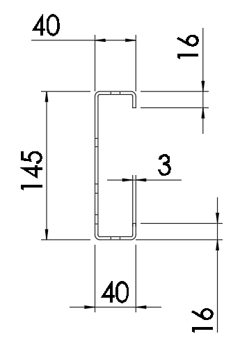
机架:采用3mm钢板下料激光切割/焊接成型,尺寸:145*40mm,结构如下图所示:
支腿:采用定制型材焊接式,具有牢固,稳定性好等优点。用连接板与机架螺栓连接,调节脚底座与地面连接,输送面高度调节±50mm,结构如下图所示:
驱动装置:电机驱动。
表面涂装:机架、支腿、导向件、附件等零部件先经钢丝刷、砂纸等除锈,并经酸洗去油脂,经磷化后表面静电喷涂环氧树脂粉末并烘烤。喷涂色由甲方指定色卡。
外购件配置: 电机采用SEW,链条采用杭州东华。
二、主要性能及其参数:
| 形式描述: u 双链辊筒传动(08B-14Z)/φ50×1.5mm u 滚筒链轮 塑钢/Q235/304 u 滚筒筒体 Q235/201/304 u 锥辊形式 塑胶锥套/钢制成型 u 机架型钢 125×40×3mm u R系列内置电机 | |
| 标准样式 | |
| 标准 | 描述 |
| 转弯角度θ (°) | 90/60/45/30 |
| 转弯半径R (mm) | 850 |
| 高度H (mm) | H(min)≥340 |
| 内宽B (mm) | 350 ≤ B ≤ 800 |
| 电机功率 (Kw) | 0.18/0.2 |
| 输送速度V (m/min) | V=20 V=25 V=32 V=40 |
| 整机承载 (Kg) | Max ≤100 |
| 辊筒间距P (mm) | P<1/3L(L为输送物长度,链条节距12.7mm) |












