一、主要机械结构和特征:
滚筒:φ50*1.5mm双链滚筒,两端轴承为免维护深沟球轴承,筒体材料为碳钢镀锌。
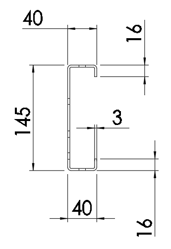
机架:采用3mm钢板激光切割下料/钻孔,数控冷轧成型,尺寸:145*40*16mm;截面尺寸如下图所示:
支腿:采用定制型材焊接式,具有牢固,稳定性好等优点。用连接板与机架螺栓连接,调节脚底座与地面连接,输送面高度调节±50mm,结构如下图所示:
驱动装置:电机驱动。
表面涂装:机架、支腿、导向件、附件等零部件先经钢丝刷、砂纸等除锈,并经酸洗去油脂,经磷化后表面静电喷涂环氧树脂粉末并烘烤。喷涂色由甲方指定色卡。
外购件配置: 电机采用SEW,链条采用杭州东华。
二、主要性能及其参数:
| 形式描述: u 无动力辊筒/φ50×1.5mm u 滚筒筒体 Q235/201/304 u 滚筒间距 75/100/120/160mm u 机架铝合金120×40mm | |
| 标准样式 | |
| 标准 | 描述 |
| 高度H (mm) | H(min)≥150 |
| 内宽B (mm) | 200 ≤ B ≤ 800 |
| 输送能力 (Kg/m) | Max ≤150 |
| 辊筒安装方式 | 六角轴式 |
| 辊筒间距T (mm) | T≤1/3L(L为输送物长度) |












