特 性 | 制造商 | 瑞搏特 | |||||
型号 | CQD16 | CQD16-Ⅲ | CQD20 | ||||
动力型式: | 电动 | ||||||
驾驶方式: | 站驾 | ||||||
额定承载能力 | Q | kg | 1600 | 1600 | 2000 | ||
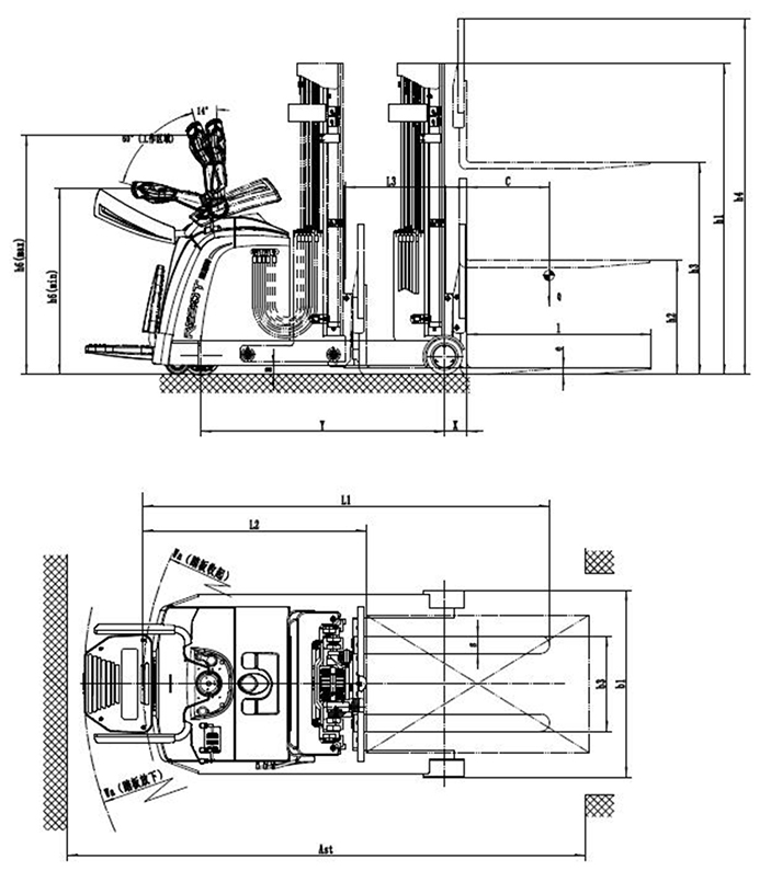
载荷中心距 | C | mm | 500 | ||||
前悬距 | X | mm | 110 | 133 | 110 | ||
轴距 | Y | mm | 1325 | 1425 | 1475 | ||
重 量 | 自重 | kg | 2323 | 2562 | 2369 | ||
满载时桥荷,驱动侧/承重侧 | kg | 1598/2325 | 1680/2520 | 1569/2800 | |||
空载时桥荷,驱动侧/承重侧 | kg | 1639/684 | 1820/780 | 1652/717 | |||
车 轮 | 轮胎:实心橡胶、超弹性体、充气胎、聚氨酯 | 聚氨酯 | |||||
车轮数量:驱动轮/承重轮(x=驱动轮) | 1×-2/2 | ||||||
轮距,驱动侧 | 696 | ||||||
轮距,承重侧 | 985 | ||||||
基 本 尺 寸 | 门架缩回时高度 | h1 | mm | 2015 | 1980 | 2015 | |
自由提升高度 | h2 | mm | 0 | 1220 | 0 | ||
起升高度 | h3 | mm | 3000 | 4500 | 2500 | ||
门架展开时高度 | h4 | mm | 3912 | 5350 | 3412 | ||
操作手柄在驱动位置时的高度,最小/最大 | h6 | mm | 1084/1392 | ||||
货叉离地高度(最低时) | h5 | mm | 40 | ||||
车体长度 | L1 | mm | 2248 | 2348 | 2398 | ||
货叉表面至前部距离 | L2 | mm | 1178 | 1278 | 1328 | ||
车体宽度 | b1 | mm | 1090 | ||||
货叉尺寸 | s/e/l | mm | 40/100/1070 | ||||
最小离地间隙 | m | mm | 55 | ||||
直角堆垛通道宽度,托盘1000×1200(1200跨货叉放置) | Ast | mm | 2652/2972 | 2752/3072 | 2802/3122 | ||
直角堆垛通道宽度,托盘800×1200(1200沿货叉放置) | Ast | mm | 2682/3002 | 2782/3102 | 2832/3152 | ||
最小转弯半径,踏板收起/放下 | Wa | mm | 1658/1978 | 1758/2078 | 1808/2128 | ||
性 能 | 行驶速度,满载/空载 | km/h | 5/6 | ||||
提升速度,满载/空载 | mm/s | 90/120 | |||||
下降速度,满载/空载 | mm/s | 120/85 | |||||
制动方式 | 电磁制动 | ||||||
电 机 | 驱动电机功率,S2:60min | kw | 1.5 | 1.5 | 1.8 | ||
提升电机功率,S3:15% | kw | 3 | |||||
提升电机功率,S3:10% | kw | 0.16 | |||||
蓄电池电压/额定容量 | V/Ah | 24/240 | 24/240 | 24/270 | |||
蓄电池重量 | kg | 240 | 240 | 270 | |||
其余 | 驱动控制方式 | 速度反馈 | |||||
驾驶员耳边噪音,根据EN12053 | dB(A) | ≤70 | |||||









